ジェイパーク横浜矢向フローラガーデン
- TOP
- ジェイパーク横浜矢向フローラガーデン
空室一覧
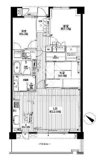
| 間取り図 | 所在階 | 合計賃料(賃料+管理費) | 間取り | 面積 | 敷金 礼金 |
仲介手数料 | 坪単価 | FR | 入居開始日 | ||
|---|---|---|---|---|---|---|---|---|---|---|---|
|
2階 | 230,000円 | 3LDK | 84.6m² | 1ヶ月 1ヶ月 |
1カ月 | 8,987円 | なし | 6月上旬 | 詳細を見る |
- 合計賃料は賃料+管理費で掲載しています。
- FR=フリーレント
物件詳細
- 物件名
- ジェイパーク横浜矢向フローラガーデン
- 賃料
- 218,000円~ 218,000円
- 所在地
-
神奈川県
横浜市鶴見区
矢向
1-5-35 - 共益費/管理費
- 12,000円~ 12,000円
- 交通
-
JR京浜東北線
川崎
徒歩4分
JR東海道本線(東京〜熱海) 川崎 徒歩4分
JR南武線 川崎 徒歩4分
- 間取り
- 3LDK ~ 3LDK
- 築年月
- 2005年1月
- 専有面積
- 84.6m² ~ 84.6m²
- 総階数
- 地上7階
- 物件特徴
- 総戸数
- 206戸
- 通学エリア小学校
- 新鶴見小学校
- 建物構造
- RC造
- 取引態様
- 媒介
- 駐車場・バイク置き場・駐輪場の空き状況等、詳細についてはお問い合わせください。
建物設備
AI検索中
AIが提案する
「あなたにおすすめの 建物 」
部屋ページでは
あなたにおすすめの部屋を提案中
- 掲載情報が現況と異なる場合は、現況を優先させていただきます。
- キャンペーン情報は予告なく変更・終了する場合がございます。詳細はお問い合わせください。
- 部屋により敷金・礼金・キャンペーンの内容が異なる場合がございますので、詳しい情報は各部屋ページにてご確認ください。
- 分譲賃貸は部屋によって所有者が異なる為、内装や設備が変更されている場合がございます。
- ペットの飼育やSOHO利用に関しては、建物自体が許可を出していても、所有者の意向により禁止とされている場合もございますのでご注意ください。
アクセス
ジェイパーク横浜矢向フローラガーデンについて
ジェイパーク横浜矢向フローラガーデンは横浜市鶴見区矢向1-5-35に所在する分譲マンションです。
交通はJR京浜東北線「川崎駅」から徒歩4分。
地上7階建、総戸数206戸、竣工は2005年1月、構造はRC造。
共用部にはエレベーター、オートロック、TVドアホンが完備されています。
室内には追い焚き、ウォシュレット、浴室乾燥機、システムキッチン、ガスコンロ、エアコンなどの設備が整い、日々の暮らしを快適にサポートします。
本物件の内覧および横浜市鶴見区や川崎駅周辺で物件をお探しの際はお気軽にお問合せください。
賃貸募集・売買をご検討のオーナー様向けに収益を最大化させるプランも掲載中です。
横浜市鶴見区
坪単価・賃料相場情報
ジェイパーク横浜矢向フローラガーデン
過去一年間の平均坪単価は8,987円です。
| 間取り | 坪単価 |
|---|---|
| 全タイプ |
¥1.3万 |
| 1R |
¥1.4万 |
| 1K |
¥1.6万 |
| 1DK |
¥1.6万 |
| 1LDK |
¥1.4万 |
| 1SLDK |
¥1.1万 |
| 2K |
¥1.6万 |
| 2DK |
¥1.2万 |
| 2LDK |
¥1.3万 |
| 3LDK |
¥0.9万 |
| 3SLDK |
¥1.4万 |
| 4LDK |
¥0.7万 |
もっと見る
| 間取り | 平均賃料 |
|---|---|
| 全タイプ |
¥17.7万 |
| 1R |
¥10.4万 |
| 1K |
¥11.2万 |
| 1DK |
¥12.7万 |
| 1LDK |
¥16.8万 |
| 1SLDK |
¥16.5万 |
| 2K |
¥11.6万 |
| 2DK |
¥18.5万 |
| 2LDK |
¥20.6万 |
| 3LDK |
¥19.3万 |
| 3SLDK |
¥39万 |
| 4LDK |
¥18万 |
もっと見る
川崎駅
坪単価・賃料相場情報
| 間取り | 坪単価 |
|---|---|
| 全タイプ |
¥1.3万 |
| 1R |
¥1.5万 |
| 1K |
¥1.5万 |
| 1DK |
¥1.4万 |
| 1LDK |
¥1.4万 |
| 1SLDK |
¥1万 |
| 2K |
¥1.5万 |
| 2DK |
¥1.3万 |
| 2LDK |
¥1.2万 |
| 2SLDK |
¥1.2万 |
| 3K |
¥1.1万 |
| 3LDK |
¥1.2万 |
| 3SLDK |
¥1.3万 |
| 4LDK |
¥0.8万 |
| 4SLDK |
¥1.4万 |
もっと見る
| 間取り | 平均賃料 |
|---|---|
| 全タイプ |
¥19.2万 |
| 1R |
¥10.2万 |
| 1K |
¥10.4万 |
| 1DK |
¥12.3万 |
| 1LDK |
¥15.7万 |
| 1SLDK |
¥16.8万 |
| 2K |
¥11.9万 |
| 2DK |
¥16.2万 |
| 2LDK |
¥21.5万 |
| 2SLDK |
¥22.8万 |
| 3K |
¥16.8万 |
| 3LDK |
¥25.5万 |
| 3SLDK |
¥25万 |
| 4LDK |
¥24.1万 |
| 4SLDK |
¥40万 |
もっと見る
オーナー様向け
売却プラン
| 物件の 売却金額 |
通常の 仲介手数料 |
|---|---|
| ¥5,000万 | ¥1,716,000 |
| ¥10,000万 | ¥3,366,000 |
| ¥20,000万 | ¥6,666,000 |
CreaVisionなら
仲介手数料
¥0
オーナー様向け
賃貸管理プラン
| 一般的な 仲介業者 |
|
|---|---|
| 成約報酬 | 1カ月分 |
| 管理手数料 | 5% |
| CreaVision |
|---|
| 0.5カ月分 |
| 3% |
ex. 賃料 ¥300,000、4年管理の物件
成約報酬
(初回)
¥300,000
¥150,000
¥150,000OFF
管理手数料
¥720,000
(¥15,000 × 48)
¥450,000
¥270,000OFF
¥420,000
コストダウン
横浜市鶴見区の新築
横浜市鶴見区の平均平米単価が安い新築物件順
最近募集が開始した新築全て見る
-
バウス一之江
4LDK ~ 4LDK / 2025年07月 / 一之江 徒歩8分
¥240,000 ~ ¥240,000
-
イノバスすみだ八広
2LDK ~ 3LDK / 2026年05月 / 八広 徒歩4分
¥224,000 ~ ¥264,000
-
ZOOM練馬高野台
1DK ~ 2LDK / 2026年05月 / 練馬高野台 徒歩12分
¥106,000 ~ ¥203,000
-
プラティーク中野坂上
1K ~ 1LDK / 2026年01月 / 中野坂上 徒歩6分
¥124,000 ~ ¥279,000
-
Alivis東日暮里
1LDK ~ 1LDK / 2026年01月 / 日暮里 徒歩6分
¥215,000 ~ ¥226,000
-
Weave Base OMORI
1DK ~ 1LDK / 2026年01月 / 大森 徒歩8分
¥153,000 ~ ¥252,000
-
サンクレイドル浅草Ⅲ
2LDK ~ 1SLDK / 2026年01月 / 浅草 徒歩22分
¥230,000 ~ ¥230,000
-
デュオヒルズ目白三丁目
3LDK ~ 3LDK / 2026年02月 / 目白 徒歩7分
¥1,550,000 ~ ¥1,550,000
-
HJクラウンⅡ
1LDK ~ 2LDK / 2026年03月 / 外苑前 徒歩10分
¥240,000 ~ ¥318,000
-
プラウドフラット西蒲田
1DK ~ 2LDK / 2026年04月 / 蒲田 徒歩6分
¥161,000 ~ ¥370,000
-
Luvast Yoyogi Park
1LDK ~ 3LDK / 2026年05月 / 代々木上原 徒歩1分
¥224,000 ~ ¥550,000
-
THE GRANDUO GAKUGEIDAIGAKU (グランデュオ学芸大学)
1LDK ~ 2LDK / 2026年07月 / 学芸大学 徒歩3分
¥900,000 ~ ¥1,050,000
当社の強み
- 数多くの表彰実績
- 創業以来、質の高い専門性とサービスで多数の取引実績を作り上げ、毎年大手不動産会社から表彰を受賞しております。その豊富な経験による知識を有し、安心・安全の不動産取引をサポートいたします。
- 管理会社との強固な信頼関係
- 多くの成約実績に加え、当社の理念である「クリーンな取引」を続けたことにより、当社にだけご紹介を任される物件や先行情報の提供、条件交渉や入居審査など「当社だから」という理由でご了承いただけることもあります。
- どこよりも早い新築・新着
- 常に最新の情報を取り入れ、お客様のニーズにいち早くお応えするためどこよりも早く新築物件や新着情報を掲載しております。最新かつ魅力的な物件情報をスピーディにユーザー様にお届けします。
- 経験豊富なスタッフ
- 経験の長いスタッフが多数在籍し、洗練された上質なサービスを提供しております。それぞれの得意エリアや得意分野を活かし、時にはチーム全体で高級賃貸の現場で培った営業力と安心をお届けします。

人気のエリアから探す
- 港区
- 中央区
- 千代田区
- 渋谷区
- 新宿区
- 江東区
- 横浜市中区
- 横浜市西区
- 横浜市北区
- 横浜市神奈川区
- 横浜市南区
- 川崎市中原区
最近見た物件
CLOSE
- 全て(0)
- 動画
















































